1 bedroom
1 bathroom
Part-Furnished
1 bedroom
1 bathroom
Part-Furnished
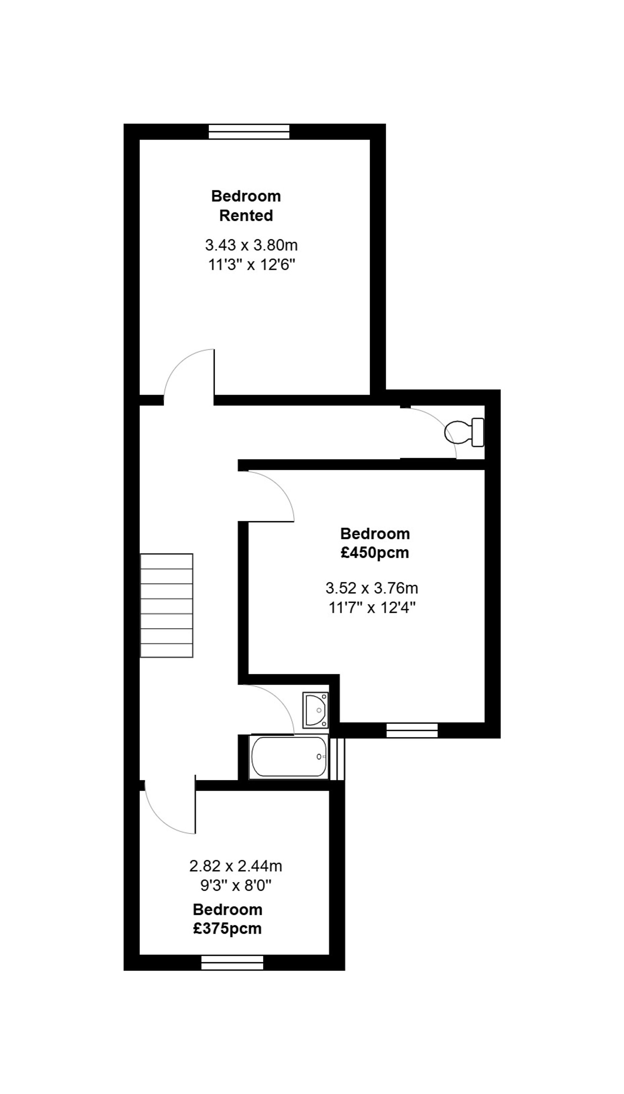
Welcome to this cosy end of terrace house, perfect for home share living. The property features a communal kitchen where you can whip up your favourite meals and a lounge diner to unwind after a long day. Plus, with all bills included, you can enjoy hassle-free living. This is for a large bedroom to the 1st floor. Situated near the Irlam Train Station, local amenities, and a bus stop, this home is ideal for professionals looking for convenience and comfort. Available long term.
Morning Room17' 5" x 11' 2" (5.30m x 3.40m)
CellarTwo Room, Access from Morning Room or back garden.
Dining Room12' 2" x 11' 6" (3.70m x 3.50m)Washing Machine, Dryer, table and chairs
Kitchen9' 2" x 8' 6" (2.80m x 2.60m)Fridge Freezer, oven Hob, microwave, kettle
Bedroom One12' 6" x 11' 2" (3.80m x 3.40m)
Bedroom Two12' 2" x 11' 6" (3.70m x 3.50m)
Bedroom Three9' 2" x 7' 10" (2.80m x 2.40m)
General
IMG_8942-IMG_8944
IMG_8948-IMG_8950
IMG_8945-IMG_8947
IMG_8951-IMG_8953
IMG_8918-IMG_8920
IMG_8939-IMG_8941
IMG_8924-IMG_8926
General
General









